견적서 문의
페이지 정보
작성자 추혜인 작성일20-04-27 11:26 조회2,651회 댓글0건본문
| 핸드폰 | 010 - 6485 - 5975 |
|---|---|
| 이메일 | mirgni@daum.net |
안녕하세요 견적요청 받고 싶어서 문의 드립니다.
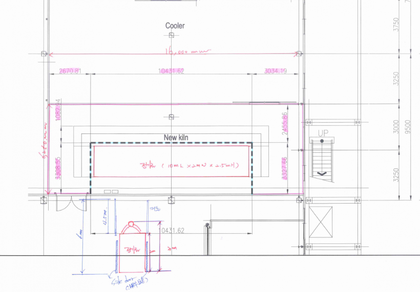
점선표시한 곳에 커텐을 설치할 것이며, 커텐종류는 스트립입니다.
세로3.3m, 가로 11m,(총 가로길이-17.6m) 커텐높이 4.5m이며 2T, 거치형 고정식으로
비닐커텐에 걸이대랑 브라켓 같이 20mm 겹치게 제작하고 싶습니다.
빠른 견적서 부탁드리며
견적서 회신은 위에 이메일로 회신 부탁드리겠습니다.
감사합니다.
댓글목록
등록된 댓글이 없습니다.



